mission
projects
works list
contacts
free website templates
Previous
Next
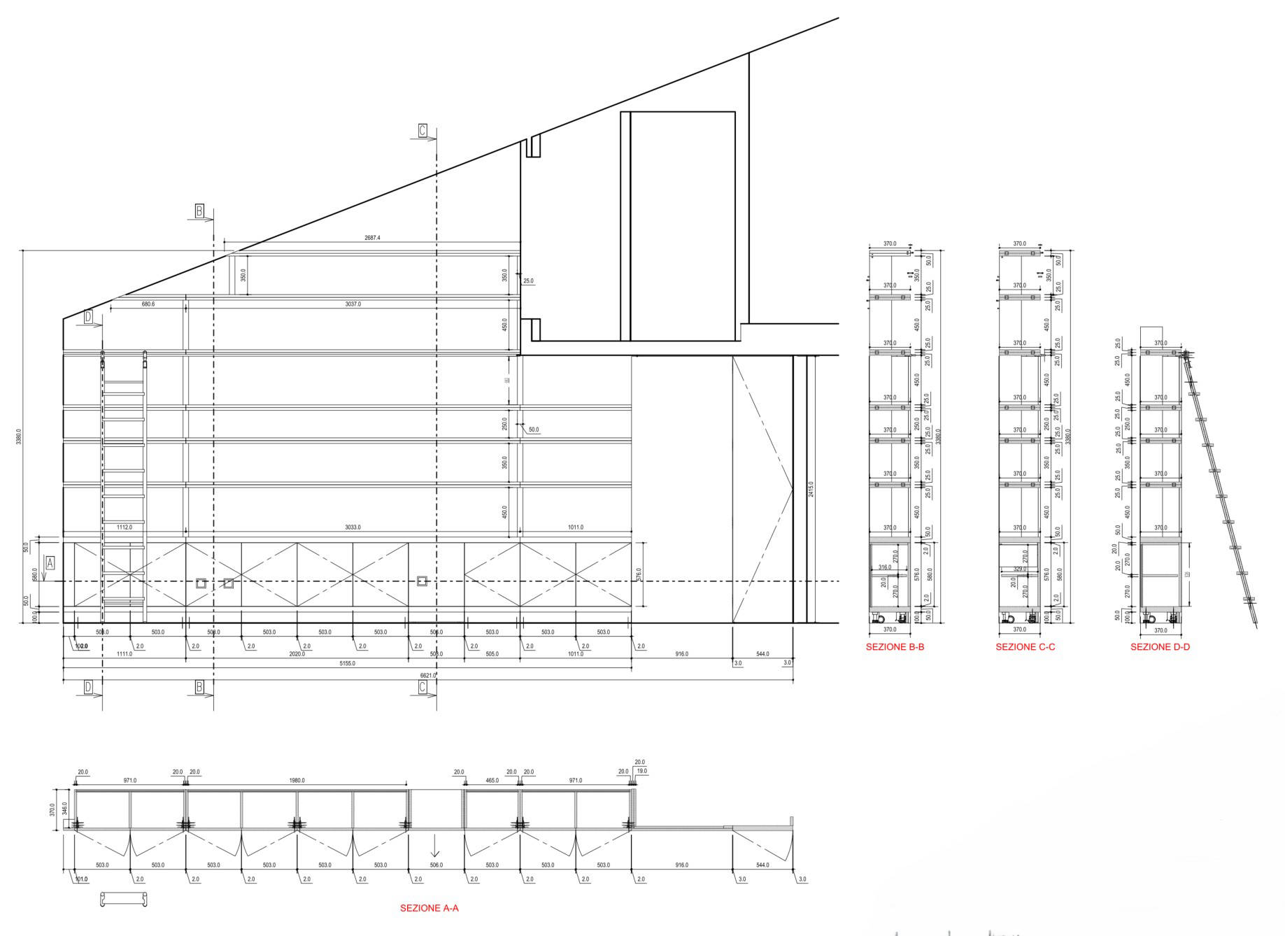
Engineering and production drawings for a private apartment. Brooklyn (US), 2024