mission
projects
works list
contacts
amp template
Previous
Next
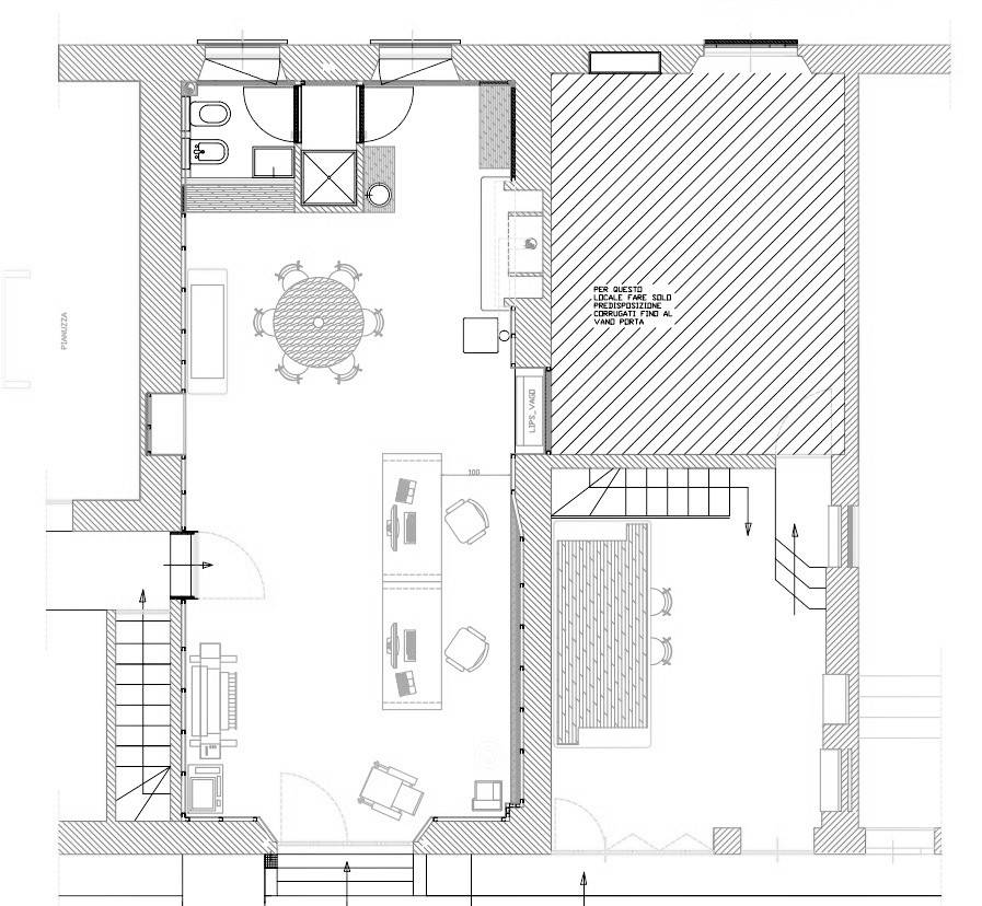
Complete renovation and conversion of a carprentry shop into a professional office, Como area Italy